Grade II listed Sackville House, with its Portland Stone facades, is located on the corner of Piccadilly and Sackville Street, Mayfair. Together with its conjoined red brick Sackville Street neighbour, it is undergoing refurbishment and vertical extension to provide 30,000 sq ft of sustainability-led office space with retail at ground level. It’s a great example of Optoppen in action — in a heritage context.
Six-storey Sackville House was designed by architect George J Skipper in 1931 and constructed in the late 1930s. Although the two building date from around the same time, there are floor level differences. Works in the current scheme combine the two interiors, add a storey to Sackville House, add two levels to the second building and partially infill the rear lightwell from ground to second floor. Many structural design iterations were carried out to determine the maximum fabric retention.
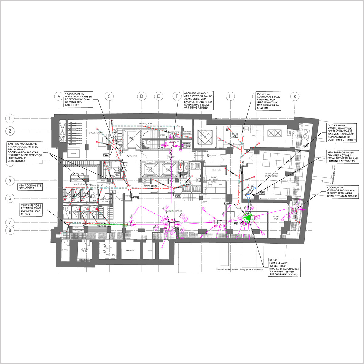
The main site constraints include Thames Water below-ground assets, three party walls, the busy city-centre location and the presence of London Underground tunnels 9m to the south. Site survey, structural investigations and (limited) architectural record information indicated that the main building is steel frame with primary loadbearing masonry elements. Among the challenges is the requirement for temporary works to keep the frame stable while the existing concrete core is removed and replaced.
Using lightweight steel/timber hybrid framing for the vertical extensions plus removal of the two existing heavy roof slabs, and screed finishes to other slabs, helps achieve the new scheme with minimal strengthening works to existing foundations and frames. Isolated column removals are part of the works.
A non-combustible steel frame and metal deck solution is used for the lightwell infill — which includes the new core and escape stairs — requiring new foundations, carefully detailed in relation to party wall constraints.
MEP + fire engineer : AECOM
project manager : Gardiner & Theobald
cost consultant : TT Alinea
client
Art-Invest Real Estate
architect
Buckley Gray Yeoman
completion
end 2026
Structural engineering
Optoppen
Civil engineering
Commercial
Heritage
model : Whitby Wood

















